
Posredujemo pri prodaji stanovanj v projektu Vila Atreo, ki predstavlja popolno ravnovesje med sodobno arhitekturo in naravnim okoljem ob reki Kokri. Projekt združuje estetsko dovršenost, funkcionalnost in visoko kakovost bivanja, le nekaj minut od središča Kranja.
Zasnovana je za tiste, ki cenijo mir, zasebnost in trajnostno bivanje v manjšem, sodobno oblikovanem objektu, kjer se udobje in tehnologija dopolnjujeta v popolni harmoniji.
Lokacija in okolje
Vila Atreo se nahaja v prijetnem, sončnem okolju Rupe pri Kranju, kjer so v neposredni bližini vse ključne storitve.
Narava v okolici ponuja številne možnosti za sprostitev in aktivno preživljanje prostega časa.
Prednosti lokacije:
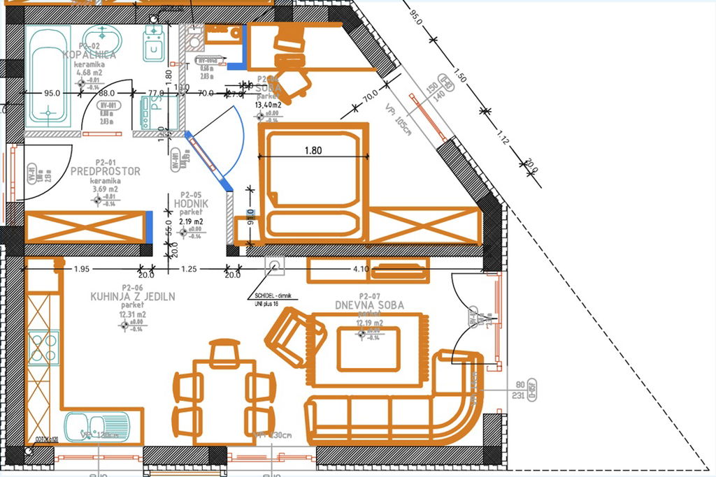
Stanovanje P2
Stanovanje P2 se nahaja v pritličju in je zasnovano kot dvosobna enota z optimalno razporeditvijo prostorov.
Prostori so svetli, zračni in prijetno orientirani za vsakodnevno udobje.
Tlorisna razporeditev:
Tehnične specifikacije
Kakovostna gradnja in oprema
Vila Atreo je zasnovana s poudarkom na trajnosti, kakovosti in udobju bivanja.
Uporabljeni so vrhunski materiali, ki zagotavljajo dolgo življenjsko dobo, visoko energijsko učinkovitost in nizke obratovalne stroške.
Kupec ima možnost izbire končnih materialov, ki so vključeni v ceno, kar pomeni, da bodo stanovanja dokončana do 5. gradbene faze – na ključ.
Ključne tehnične značilnosti vključujejo:
Pametno bivanje
Z možnostjo nadgradnje lahko svoje stanovanje spremenite v pametni dom, ki omogoča popoln nadzor nad udobjem in energijsko učinkovitostjo.
Vse funkcije boste lahko upravljate neposredno preko svojega pametnega telefona.
Pametne rešitve vključujejo:
Varnost in zasebnost
Vsa stanovanja so opremljena s kakovostnimi električnimi roletami tipa krpank, ki zagotavljajo popolno zasebnost.
Na zunanji strani vile bo nameščen videonadzorni sistem, ki omogoča 24-urno spremljanje okolice in območja nadstrešnice parkirnega mesta ter s tem prispeva k večji varnosti bivanja.
Investicijska priložnost
Kombinacija kakovostne gradnje, sodobnih tehnoloških rešitev in mirne, zelene lokacije uvršča Vilo Atreo med najprivlačnejše novogradnje v okolici Kranja.
Stanovanje P2 je idealna izbira za posameznike ali pare, ki iščejo popolno ravnovesje med naravo, udobjem in tehnološko naprednostjo.
Cena stanovanja P2: 301.260,00 €
Več informacij na 040 888 789 Boris
Za ogled ostalih nepremičnin obiščite: https://fesst.si
